Kitchen Expansion. Home
Here are the latest drawings for our kitchen upgrade. I'd appreciate
any feedback. Email me at
Nathan Liskov
Here are the designs and I'll like any feedback. One-foot
increments are shown on each drawing and the drawings are accurate to
better than one inch.
Plans
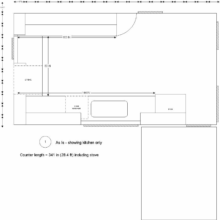
- Current Layout
- Floor Plan
- Cabinet Elevations (original plan)
- Cabinet Elevations (As marked up by cabinet maker)
- Outside Elevations
Follow the actual construction in the "Reality" links below:
Reality
- Some "before" pictures
- Day 1 - Jan 30, 2003 - Removing the Back Porch
- Day 2 - Jan 31, 2003 - Back Porch Debris Cleanup
- Day 3 - Feb 5, 2003 - Digging the Foundation
- Day 4 - Feb 6, 2003 - The Addition Footings
- Day 5 - Feb 8, 2003 - Snow Break
- Day 6 - Feb 12, 2003 - The Addition Foundation
- Day 7 - Feb 14, 2003 - Foundation Forms Removal
- Day 8 - Feb 18/19, 2003 - Snow Break 2
- Day 9 - Feb 24, 2003 - Backfilling the foundation
- Day 10 - Feb 25, 2003 - Start of Framing
- Day 11 - Feb 26, 2003 - Jacking Up
- Day 12 - Feb 27, 2003 - Addition Floor
- Day 13 - Feb 28, 2003 - Addition Floor and Porch Floor
- Day 14 - Mar 3, 2003 - Addition walls
- Day 15 - Mar 4, 2003 - Addition walls - cladding
- Day 16 - Mar 5, 2003 - First two rafters
- Day 17 - Mar 6, 2003 - Four more rafters
- Day 18a - Mar 7, 2003 - Visit to granite shop
- Day 18b - Mar 7, 2003 - Porch front wall and rafters
- Day 19 - Mar 8, 2003 - Porch skylight framing
- Day 20 - Mar 10, 2003 - More roof framing
- Day 21 - Mar 11, 2003 - Porch roof sheating
- Day 22 - Mar 12, 2003 - Porch floor
- Day 23 - Mar 13, 2003 - Trim work
- Day 24 - Mar 17, 2003 - Rubber roof
- Day 25 - Mar 18, 2003 - Door, windows and skylights
- Day 26 - Mar 19, 2003 - Bay windows
- Day 27 - Mar 20, 2003 - Soffits and trim
- Day 28 - Mar 21, 2003 - Tyvek
- Day 29 - Mar 24, 2003 - Siding
- Day 30 - Mar 25, 2003 - Kitchen destruction
- Day 31 - Mar 26, 2003 - Breaking through
- Day 32 - Mar 27, 2003 - West wall
- Day 33 - Mar 28, 2003 - North wall
- Day 34 - Mar 31, 2003 - North wall, continued
- Day 35 - Apr 1, 2003 - South wall
- Day 36 - Apr 2, 2003 - Strapping
- Day 37 - Apr 3, 2003 - Electricians start
- Day 38 - Apr 4, 2003 - Electricians continue
- Day 39 - Apr 7, 2003 - More electricians
- Day 40 - Apr 8, 2003 - Electricians again
- Day 41 - Apr 9, 2003 - Laundry room wall removal
- Day 42 - Apr 11, 2003 - Finish rough electrical
- Day 43 - Apr 14, 2003 - Plumbing starts
- Day 44 - Apr 15, 2003 - Floor leveling
- Day 45 - Apr 16, 2003 - More plumbing
- Day 46 - Apr 18, 2003 - Rough plumbing finished
- Day 47 - Apr 21, 2003 - Removing dirt pile
- Day 48 - Apr 22, 2003 - Pre-General-Inspection
- Day 49 - Apr 23, 2003 - Insulation/heating
- Day 50 - Apr 24, 2003 - Heating tubes
- Day 51 - Apr 25, 2003 - Dry wall
- Day 52 - Apr 28, 2003 - Plastering
- Day 53 - Apr 30, 2003 - Kitchen oak floor
- Day 54a - May 2, 2003 - Laundry room tile floor
- Day 54b - May 2, 2003 - New electrical service
- Day 55 - May 5, 2003 - Cabinets
- Day 56 - May 6, 2003 - Cabinets continued
- Day 57 - May 7, 2003 - Finish electrical starts
- Day 58 - May 9, 2003 - Gas service
- Day 59 - May 14, 2003 - Misc
- Day 60 - May 15, 2003 - Porch stairs
- Day 61 - May 19, 2003 - Kitchen trip 1
- Day 62 - May 20, 2003 - Misc 2
- Day 63 - May 21, 2003 - Range hood
- Day 64 - May 22, 2003 - Laundry room ceiling
- Day 65 - May 23, 2003 - Trim 1
- Day 66 - May 27, 2003 - Granite counters
- Day 67 - May 28, 2003 - Trim 2
- Day 68 - May 29, 2003 - Trim 3
- Day 69 - May 30, 2003 - Painting 1
- Day 70 - May 31, 2003 - Painting 2
- Day 71 - Jun 1, 2003 - Painting 3
- Day 72 - Jun 2, 2003 - Lawn 1
- Day 73 - Jun 3, 2003 - Finish plumbing
- Day 74 - Jun 4, 2003 - Espresso bar
- Day 75 - Jun 5, 2003 - Counter sealing
- Day 76 - Jun 6, 2003 - Lawn 2
- Day 77 - Jun 9, 2003 - Porch screens 1
- Day 78 - Jun 12, 2003 - Gas line
- Day 79 - Jun 13, 2003 - Cooking with gas
- Day 80 - Jun 14, 2003 - Heating pipes
- Day 81 - Jun 16, 2003 - Porch screens
- Day 82 - Jun 17, 2003 - Outside painting 1
- Day 83 - Jun 18, 2003 - Outside painting 2
- Day 84 - Jun 19, 2003 - Porch floor
- Day 85 - Jun 20, 2003 - Floor sanding
- Day 86 - Jun 21, 2003 - Heating pipes 2
- Day 87 - Jun 25, 2003 - Floor finishing
- Day 88 - Jun 27, 2003 - Porch screen door
- Day 89 - July 21, 2003 - Misc 3
- Day 90 - July 22, 2003 - Gutters
- Day 91 - July 30, 2003 - Backsplash tile
This is the design we are going to use.
This design expands to the east. The porch would then be redone
and moved farther east. It will be a little narrower than current porch but about the same length.
Extension and new porch will have a shed roof as in current design.
However, roof will be a rubber roof so that slope can be less than
current design and maintain full kitchen ceiliing height of the new
area all the way to the north wall. A skylight will be installed in
the expanded kitchen area.
There appears to be a little less overhead cabinet space
compared to the original kitchen, but the double storage cabinet more
than makes up for it. Counter space (and under-counter cabinets is a
little more than current design.
Expansion is only 7 ft to the east - limited by stained glass
window.
The area in green is the new breakfast area, which includes
the removed old east wall. The area in yellow is the existing
kitchen floor area.
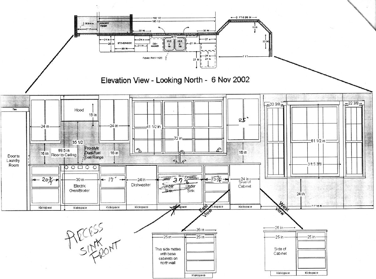
Pro-stype stove with gas range and electric oven/broiler. Hood
vents out through laundry room roof with vent motor outside.
- 1. Elevation looking to south wall.
Three overhead cabinets rather than four gives more reasonable width per cabinet. Left cabinet ends 2 in before end of wall. Overhead cabinet over desk has one wide and one narrow width.
- 2. Elevation looking to east wall.
Double cabinet will be built as a single 54 in wide cabinet. Total space for cabinets and wet bar area turned out to be less than originally planned. The wide cabinet will have drawers rather than slide-outs.
- 3. Elevation looking to north wall.
Recess in sink cabinet requires wider cabinet. Widths of drawers shown. Hood will be 28 in above counter. Separate gas cooktop and wall oven under it will be used instead of dual-fuel range.